8 (843) 210-14-24 Бесплатный звонок по РФ

Сдвиговые сильфонные компенсаторы ZOLT Valve

Под заказ
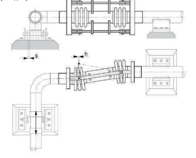
Сдвиговые компенсаторы предназначены для компенсации поперечных смещений трубопровода, возникающих в результате температурного расширения, внешних механических воздействий или перемещений оборудования. Их основной отличительной особенностью является способность компенсировать деформации, перпендикулярные оси трубопровода, благодаря работе двух сильфонов, соединённых промежуточным патрубком.

Сдвиговые сильфонные компенсаторы – гибкое решение для компенсации поперечных деформаций

Сдвиговые компенсаторы предназначены для компенсации поперечных смещений трубопровода, возникающих в результате температурного расширения, внешних механических воздействий или перемещений оборудования. Их основной отличительной особенностью является способность компенсировать деформации, перпендикулярные оси трубопровода, благодаря работе двух сильфонов, соединённых промежуточным патрубком.

Принцип действия и конструктивные особенности

Принцип работы сдвигового компенсатора аналогичен угловым моделям — основан на упругой деформации (изгибе) сильфонов. Компенсационная способность достигается за счёт противоположного изгиба сильфонов, что позволяет эффективно компенсировать сдвиги и вибрации в различных плоскостях.

Чем длиннее промежуточный патрубок, тем больше возможное поперечное смещение, при этом реакционные усилия уменьшаются. Это позволяет добиться высокой гибкости конструкции при минимальной нагрузке на опорную систему.

Преимущества сдвиговых компенсаторов:

  • Разгруженный тип: не передают распорных усилий на опоры трубопровода;

  • Подходят для самостоятельной установки без обязательной системы из нескольких компенсаторов;

  • Работают в одной или двух плоскостях, компенсируя сложные векторы смещения;

  • Эффективно гасит вибрации, возникающие при работе насосов, турбин, компрессоров, ДВС и другого промышленного оборудования;

  • Снижают износ оборудования и трубопровода, продлевая срок службы систем.

Применение сдвиговых компенсаторов

Сдвиговые компенсаторы востребованы в следующих сферах:

  • В теплоэнергетике и отопительных системах — для компенсации линейных и поперечных температурных расширений;

  • В нефтегазовой и химической промышленности — на трубопроводах, где возникают смещения из-за колебаний температур, давления или вибраций;

  • В системах вентиляции и аспирации, а также в выхлопных каналах, где необходима компенсация колебаний и смещений от работающего оборудования;

  • В машиностроении и металлургии — для повышения надёжности и гибкости соединений при работе под переменными нагрузками;

  • В коммунальных и промышленных водо- и теплоснабжающих сетях — при прокладке труб с длинными участками или нестабильной геометрией трассы.

Конструктивные типы и исполнения

Существует два основных вида сдвиговых компенсаторов:

  1. Однонаправленные — компенсируют смещения в одной плоскости, перпендикулярной оси трубопровода;

  2. Двунаправленные (универсальные) — работают в двух взаимно перпендикулярных плоскостях, обеспечивая максимальную свободу компенсации.

Конструкция из двух сильфонов и патрубка, дополненная тягами или шарнирными/карданными соединениями, используется при высоком давлении и значительных перемещениях.

Опоры при использовании сдвиговых компенсаторов

Правильно подобранные и установленные опоры играют ключевую роль в стабильной работе системы. На участках трубопровода с установленными сдвиговыми компенсаторами опоры должны:

  • Поддерживать вес труб и компенсаторов;

  • Направлять движение трубы строго по оси;

  • Обеспечивать компенсацию при сокращении проекции длины трубы (h), возникающей при сдвиге или наклоне участка.

Технические характеристики:

  • Диаметр условного прохода (DN): от 15 мм до 6000 мм

  • Рабочее избыточное давление (PN): до 10,0 МПа

  • Температурный диапазон эксплуатации: от -196°C до +650°C (в зависимости от материалов)

  • Материалы исполнения:

    • Сильфоны — из жаростойких, кислотостойких и коррозионностойких сталей;

    • Соединительная арматура — адаптируется под специфику среды (фланцы, сварные патрубки, муфты и др.);

    • Вариативные элементы: внутренние вставки, защитные кожухи, уплотнения и упорные элементы.

Проектирование и производство соответствуют стандартам EJMA, EN14917:2009+A1:2012 и другим международным нормативам.

Индивидуальный подход от ZOLT

Компания ZOLT предлагает изготовление сдвиговых компенсаторов по индивидуальным параметрам. Наши специалисты подберут:

  • Оптимальный тип компенсатора для вашего проекта;

  • Расчётную длину патрубка и тип соединения;

  • Необходимые элементы защиты и крепления;

  • Гарантированное соответствие техническим требованиям и нормативам.

Оставьте заявку на консультацию — и мы предложим решение, соответствующее вашему производству, бюджету и техническому заданию.

ZOLT — профессиональные решения для стабильной работы трубопроводов.

  • Надёжность.
  • Эффективность.
  • Проверенные технологии.
2.webp

Преимущества бренда

Гарантия качества
Компания располагает полноценной технической командой и системой управления качеством и производит продукцию в строгом соответствии с современными требованиями к управлению и процессам.
Инновационные решения и технологии
Компания использует передовые методы проектирования и моделирования, а также современное производственное оборудование, чтобы гарантировать высочайший уровень производительности и надежности продукции.
Контроль качества
Строгая системой контроля качества, которая охватывает каждый этап производственного процесса, от выбора сырья до окончательной сборки и тестирования. Используются только сертифицированные материалы, соответствующие международным стандартам, и проводятся тщательные проверки на каждом этапе.

Нужна помощь?

Задайте вопрос — вам ответит наш категорийный менеджер

Здесь пока нет вопросов

Будьте первым, напишите свой вопрос!

Отзывы

Пока отзывов нет