8 (843) 210-14-24 Бесплатный звонок по РФ

Угловые сильфонные компенсаторы ZOLT Valve

Под заказ
Угловые компенсаторы (или шарнирные компенсаторы) предназначены для компенсации температурных деформаций, возникающих в трубопроводных системах на участках изменения направления потока. В отличие от осевых моделей, они не работают в одиночку — эффективное использование возможно только в составе системы из двух или трёх компенсаторов, которая формирует так называемую угловую компенсационную схему.

Угловые сильфонные компенсаторы — решение для поворотных участков трубопровода

Угловые компенсаторы (или шарнирные компенсаторы) предназначены для компенсации температурных деформаций, возникающих в трубопроводных системах на участках изменения направления потока. В отличие от осевых моделей, они не работают в одиночку — эффективное использование возможно только в составе системы из двух или трёх компенсаторов, которая формирует так называемую угловую компенсационную схему.

Назначение и принцип работы

Угловые компенсаторы незаменимы в тех случаях, когда трубопровод:

  • меняет направление в одной или нескольких плоскостях;

  • работает под воздействием высоких температур;

  • нуждается в компенсации удлинений без возникновения распорных усилий.

Компенсация осуществляется за счёт поворота секций трубопровода вокруг осей шарниров или карданных соединений, обеспечивая гибкость конструкции без удлинения сильфона.

Преимущества угловых компенсаторов:

  • Не создают распорных усилий — не передают осевых нагрузок на опоры, что позволяет использовать менее массивные конструкции;
  • Эффективны на длинных участках — компенсируют значительные тепловые перемещения без удлинения самой системы;
  • Идеальны для поворотных трасс — работают на участках, где трубопровод изгибается в одной или нескольких плоскостях;
  • Облегчают монтаж и обслуживание — благодаря снижению нагрузки и отсутствию необходимости в тяжёлых неподвижных опорах.

Особенности установки и эксплуатации:

  • Угловые компенсаторы относятся к разгруженному типу, не передают усилия на опоры трубопровода.

  • Для корректной работы компенсирующей системы важно правильно расположить опоры и направляющие, а также соблюдать технические параметры монтажа.

  • На коротких участках, особенно рядом с источниками тепла, можно обойтись без опор — достаточно подвесной или качающейся конструкции.

  • На протяжённых трассах необходимо использовать направляющие опоры перед каждым компенсатором.

  • Категорически запрещается допускать крутящий момент на корпусе сильфона — это приведёт к его повреждению и потере герметичности.

Типы угловых компенсаторов по типу соединения

  1. С шарнирным соединением (одноплоскостные):
    Применяются, если изменение направления трубопровода происходит в одной плоскости. Обеспечивают свободное вращение вокруг одной оси, ограничивая перемещение в других направлениях.

  2. С универсальным карданным соединением (двухплоскостные):
    Используются, когда направление трубопровода меняется в двух взаимно перпендикулярных плоскостях. Такие компенсаторы обеспечивают высокую степень гибкости при сохранении прочности и герметичности.

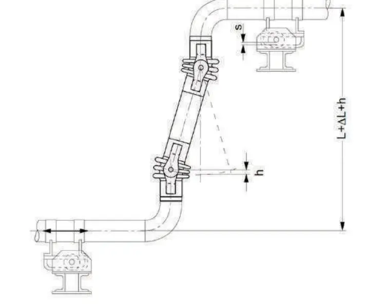
Функции опор при использовании угловых компенсаторов

Опоры, установленные на участках с угловыми компенсаторами, должны:

  • Поддерживать вес трубопровода и компенсаторов;

  • Направлять движение труб вдоль заданной оси;

  • Обеспечивать перемещение в случае изменения длины проекции (h) трубопровода при его наклоне.

Технические параметры и индивидуальные опции:

  • Диаметры условного прохода (DN): от 15 мм до 6000 мм

  • Номинальное давление (PN): до 10,0 МПа

  • Материалы:

    • Сильфоны — из жаропрочных, коррозионно- и химически стойких сталей и сплавов;

    • Арматура — подбирается по параметрам среды и условий эксплуатации.

По желанию заказчика возможна комплектация:

  • Защитными кожухами (экранами);

  • Внутренними гильзами (вставками);

  • Различными типами присоединительной арматуры: фланцевой, под сварку, резьбовой и др.;

  • Антикоррозионными покрытиями для эксплуатации в агрессивных средах.

Проектирование и производство осуществляется по международным нормам:

  • EJMA 10 (Expansion Joint Manufacturers Association)
  • EN 14917:2009+A1:2012 — европейский стандарт проектирования и испытаний металлических компенсаторов.

Индивидуальный подбор и консультация от ZOLT

Компания ZOLT предлагает полный ассортимент угловых сильфонных компенсаторов, изготовленных под конкретные технические задачи. Мы поможем с выбором оптимальной схемы компенсации, рассчитаем расстояния между компенсаторами, подберём материалы и варианты исполнения.

Оставьте заявку прямо сейчас, и наши инженеры свяжутся с вами для подбора и расчёта оборудования, полностью соответствующего требованиям вашего проекта.

ZOLT — надежные инженерные решения для трубопроводных систем.

Точность. Безопасность. Проверенное качество.

2.webp

Преимущества бренда

Гарантия качества
Компания располагает полноценной технической командой и системой управления качеством и производит продукцию в строгом соответствии с современными требованиями к управлению и процессам.
Инновационные решения и технологии
Компания использует передовые методы проектирования и моделирования, а также современное производственное оборудование, чтобы гарантировать высочайший уровень производительности и надежности продукции.
Контроль качества
Строгая системой контроля качества, которая охватывает каждый этап производственного процесса, от выбора сырья до окончательной сборки и тестирования. Используются только сертифицированные материалы, соответствующие международным стандартам, и проводятся тщательные проверки на каждом этапе.

Нужна помощь?

Задайте вопрос — вам ответит наш категорийный менеджер

Здесь пока нет вопросов

Будьте первым, напишите свой вопрос!

Отзывы

Пока отзывов нет